【專家談水環境】西安交大游泳池水處理和室內空氣處理的設計(二)
發表時間:2020-12-15 00:00:00|閱讀量:870
主題:西安交通大學中國西部科技創新港校區游泳池水處理和室內空氣處理的設計
嘉賓:劉春生
摘要:高校游泳池水處理及空氣處理系統,具有專業特點和高校自身的特點。本設計在采用池水循環、過濾、消毒及加熱的系統來滿足游泳池水質標準的同時,采用多功能除濕熱回收熱泵系統,保證游泳池室內空氣質量達標。
上期文章【專家談水環境】西安交大游泳池水處理和室內空氣處理的設計(一)我們講解了西安交通大學中國西部科技創新港校區游泳池循環、過濾、消毒系統的部分內容,本期文章將繼續為你解析西安交大游泳池加熱系統及恒溫除濕系統內容。
3.4加熱系統
根據當地氣候條件和現場實際情況,本項目選擇低溫型泳池專用空氣源熱泵做為直接加熱(提高加熱效率)熱源,提供泳池初次加熱和維持泳池恒溫運行。
由于采用直接加熱方式,泳池池水與設備直接接觸,空氣源熱泵使用“PVC+鈦管冷凝器”泳池加熱技術,PVC和鈦金二者都具有超強的耐腐蝕性能,從里到外,全方位抵御泳池水中氯離子的侵蝕,能夠長期穩定運行。
空氣源熱泵是一種安全、節能、低污染符合綠色發展的技術成熟的節能環保設備,它是一種利用少量的電能來驅動壓縮機工作,利用相變吸熱、放熱的特點吸收空氣中的熱量,空氣源熱泵制熱時耗電量非常低,僅為普通電鍋爐的四分之一。
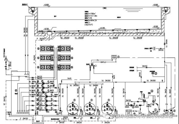
圖4 西安交通大學中國西部科技創新港校區游泳池水處理流程圖
循環、過濾、消毒、加熱,它們之間相互影響,最佳的組合不僅能達到好的水質,還能節約資源,例如好的過濾效果可減少藥劑的投加量。
表2 西安交大熱泵參數表
3.5 恒溫除濕系統
水質保證的同時還要有舒適的游泳空間環境,因游泳池水面較大、水溫較高,水面易蒸發,易出現下面問題:
① 有害物質危害人體健康
室內恒溫泳池池水表面的蒸發而向室內空氣擴散大量水蒸氣,致使室內相對濕度過高超過80%,促使人體甲狀腺素和腎上腺素降低,使人無精打采萎靡不振。而消毒設備運行過程中產生的氨氮等消毒副產物DBPs也會隨之散發進入空氣,成為哮喘的誘因,同時還存在其他揮發性有機物VOCs,危害人體健康。隨時間積累池面蒸發使室內空氣含有大量的水蒸氣、氯氣,帶有刺激性的氣味,游泳者會出現悶熱煩躁的感覺,特別是當相對濕度較高(大于75%)時,細菌和病毒繁殖滋生加快,嚴重侵害游泳者的身體健康。
② 建筑和裝飾腐蝕
室內游泳池由于池水表面蒸發和氯消毒過程中產生的氯的有機化合物容易使室內充滿潮濕含氯的空氣,當潮濕含氯的空氣遇到較冷物體就會凝結出含氯冷凝水,吸附在金屬結構表面,氯離子將會腐蝕建筑物中金屬結構,造成嚴重的安全隱患。相對濕度過高也會造成墻面漆受潮空鼓、掉粉、長霉斑甚至脫落墻體。墻壁瓷磚受潮后顏色會發生變化,木質、皮質等裝飾材料在受潮后極易生長霉菌產生異味,霉菌在相對濕度75-95%時會成爆發性生長形成霉斑。冷凝水會造成霧氣,影響室內游泳者觀看室外環境,在冬天室內外溫差較大時,易形成凝結水(結露)觀感差,影響室內裝飾美觀性。
③ 能耗過高,浪費能源
運行成本高,泳池水處理和泳池恒濕恒溫能耗過高。根據資料顯示,游泳池內80%以上的能量損失是由于蒸發造成的,這部分能量大部分以水汽(潛熱)的形式存在泳池空氣中,如采用傳統的通風置換除濕,一般要求排風量為每小時2-4倍的泳池室內容積,將室內高溫高濕空氣直接排到室外同時引入室外干燥新風,這樣就使得空氣中含有的大量熱能沒有被回收利用而白白浪費,另外還要耗費大量能源對引入的新風進行空調處理,在傳統設計方式中游泳池不得不采用鍋爐、中央空調等提供大量的熱源或冷源向泳池內補充能量,并且各設備不能做到能源綜合回收利用,造成了能耗大,運行費用居高不下。
④ 空間潮濕,感官差,電器易漏電
室內高濕度空氣容易形成結露,甚至可能在池水表面形成霧氣,特別是冬天室外溫差較大的情況下,玻璃結露影響人的視覺感官。墻面、天花在接觸高濕度空氣時也容易凝水,在室內空氣相對濕度超過80%時,電器的使用也造成漏電安全隱患,容易發生電路設備放點短路、人員觸電的事故,對生命和財產造成嚴重威脅。
多功能除濕熱泵可以很好的解決以上問題:
① 將室內游泳池面上空散失的濕熱空氣通過回風管道全部回收到除濕熱泵,經過熱泵的低溫蒸發器使其溫度急速降低水蒸汽凝結成水,達到除濕效果,并提升室內空間環境舒適度,防止濕熱空氣對建筑結構及設備的結露和腐蝕;
② 在蒸發器冷凝除濕的同時,其熱量傳給了冷媒,冷媒則可將一部分熱量通過池水冷凝器傳到需要加熱的池水;另一部分熱量經過空氣冷凝器將除濕后干冷的空氣重新加熱到一定的溫度,并與新風混合后,重新送回游泳池、游樂池室內空間,提供了免費的熱量;
③ 它能每消耗 1kW 的電能可回收 3kW~4kW 的熱能;
④ 根據季節變化實現不同工作模式;
1)冬季需熱量較大而回收的熱量不夠時,可以自動開啟輔助加熱系統補充不足的熱量;
2)夏季環境溫度較高,需要的熱量不多,而回收的熱量有富裕時,則可將多余的熱量通過室外冷凝器排放到室外大氣中,達到制冷的目的;
3)春秋過渡季節,室外環境溫度、濕度較好。熱泵的風機系統,則可以直接將室內的空氣排到室外,實現全新通風換氣,在以上的工作過程中,熱泵只需要提供自身運行的電能即可實現恒溫泳池內空間除濕、空氣制冷制熱、通風換氣及池水加熱多種功能。
從以上它的功能可以看到,它是一種能實現室內恒溫、恒濕、節能、節水、延長建筑物使用壽命的綠色、環保的技術。
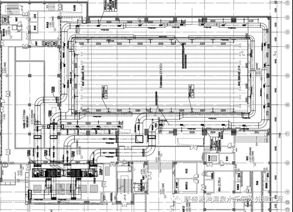
圖5 西安交通大學風管平面布置圖
表3 西安交通大學除濕熱泵參數表
4、結語
學校游泳池首先是服務于特殊的群體——在校學生,它兼有游泳教學、游泳訓練、游泳比賽等功能。由于大學、中學和小學這些不同類型的學校,學生的年齡、身體素質、身高和心理等有較大的差異,對學校游泳池的設計和運行要有不同的要求。
國家中考重大改革——體育課已經成為第四大主科(語數外體),并將游泳項目作為第一類考核項目。我們在設計高校游泳場館的基礎上,為全國各地的中小學游泳池的設計和建設提供了一整套設計指導,被多地選為地方標準。例如:中小學游泳場館的設計和驗收依據中華人民共和國城鎮建設行業標準《游泳池水質標準 CJ/T 244-2016》和《游泳池給水排水工程技術規程CJJ122-2017》,運行后的池水質量和室內空氣質量符合國家標準《公共場所衛生指標限值要求 GB37488-2019》;在設計和運行中要確保池水和室內空氣的衛生、人身和設備的安全、節水環保、技術先進和經濟合理;學校游泳池要有明確的安全標志,池水水質和空氣質量的重要指標要有公開醒目的顯示;水質、空氣質量、設備運行和開放情況記錄要全面、準確,并保持原件和備份;學校游泳池的運行和管理必須制定完善的《游泳準入規程》、《風險評估和預防措施》、《救生員管理條例》、《安全操作和運行規程》和《緊急事件處理方案》等一系列規章制度。還有更詳細的設計、建造和運行的技術參數等等技術信息,提供交流和探討。
作為學校游泳池,對于游泳池水質是否達標顯得尤為重要,設計階段要根據學校游泳池使用特點做針對性的設計,同時優良的施工和后期運行維護也是保證水質的重要組成部分。
參考文獻
1. 游泳池水質標準CJ/T244-2016
2. 游泳池給水排水工程技術規程CJJ122-2017
3. 公共場所衛生指標限制要求GB37488-2019
4. 游泳池及游樂休閑設施水環境技術手冊2019
5. 游泳池除濕熱回收泵 CJ/T528-2018
6. 體育建筑設計規范 JGJ 31-2003




